BYTOVÝ DŮM

HOSTIVICE - LITOVICE


Studie novostavby _ 2024/2025

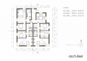
Studie novostavby bytového domu s 9 bytovými jednotkami a technickým suterénem. Kubická hmota je členěna hmotou vstupu a schodiště, která je stejně jako první nadzemní podlaží obložena cihelným páskovým obkladem. Členění fasády tvoří lehká kompozice prosklených ploch a balkónů.

ARCHITEKTONICKY ATELIER

_
Ke Stírce 540/55, Praha 8
Ing. arch. Karel Rech
+420 604 525 020
karel@archfeel.cz

Ing. arch. Veronika Rechová
+420 723 469 211
veronika@archfeel.cz