RADOŠOVICE

Novostavba rodinného domu


Studie _ 2025
DSP _ 2025
DPS _ 2025

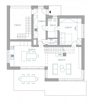
Studie rodinného domu _ plochá střecha _ velké prosklené plochy _ cihelný páskový obklad _ vyvážená decentní elegance s důrazem na detail.

ARCHITEKTONICKY ATELIER

_
Ke Stírce 540/55, Praha 8
Ing. arch. Karel Rech
+420 604 525 020
karel@archfeel.cz

Ing. arch. Veronika Rechová
+420 723 469 211
veronika@archfeel.cz